Lot 122 Edge Drive, Yarrabilba

$966,490 Fixed Price * Full Turnkey

4 3 2 522 m2

Space for trailer, boat, campervan etc.. secured drive through access behind front fence!

Live the life you've been wishing for with CJ Homes! 🌳🏡

This impressive lot is 522sqm.  Opportunities for a lot with a great wide frontage don't come up often.  This allows you to have side access secured behind your front fence with access with space to store a trailer, boat or campervan or extra vehicles.

This house is yet to be constructed.  The land is due to register in August so we can start the building journey now.

We offer a NO CHARGE service to customise our house designs to make your home perfect for you or choose one of our other designs.

Located in a perfect spot in Yarrabilba, limited opportunity for a registered lot, don't miss out contact us now.

This wont last long, 📞 Contact Sharlene Leeson Today! For further details and to embark on the journey to your dream home, call on 0409 642 779. Don't miss out on the opportunity to be part of this incredible community!

🏠 Your Dream Home Awaits – At CJ Homes, we specialise in fixed pricing, ensuring transparency in your build cost from the start. Our commitment to customer satisfaction is unmatched. Imagine walking into your new home with nothing else left to do. 

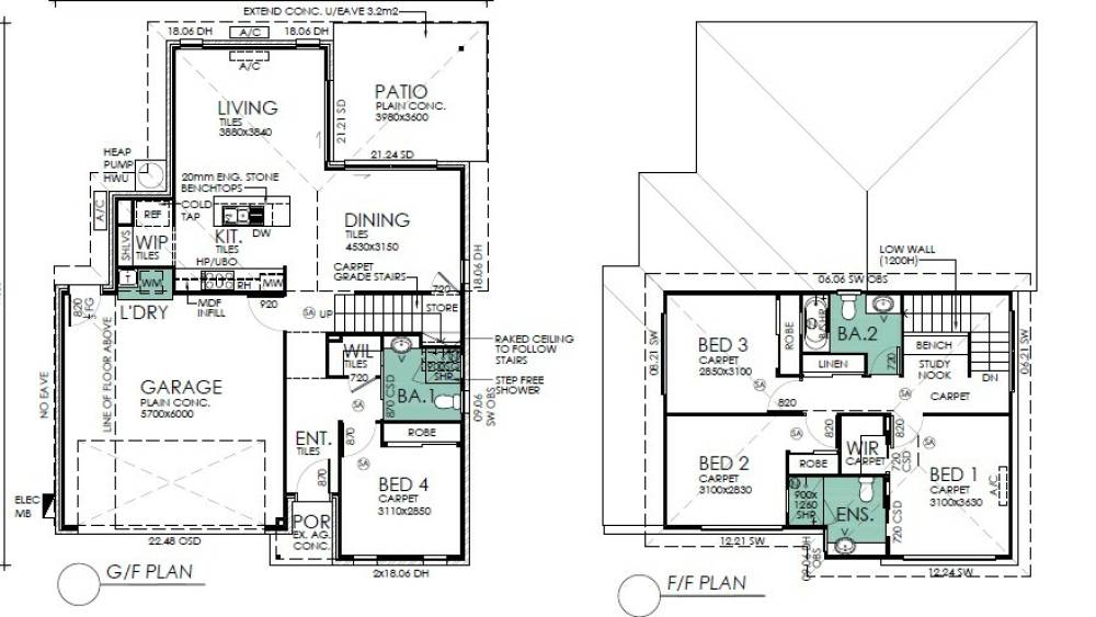
This custom designed two storey home has a bedroom and bathroom on the ground floor, and three more bedrooms with ensuite and main bathroom on the first floor. With custom kitchen cabinetry, the kitchen, living and dining areas flow out onto the alfresco area, great for entertaining. With this size back yard you will be the envy of all your friends and family. 

Nestled between a striking Mt Tambourine backdrop and pristine Plunkett Conservation Park, Yarrabilba’s Park Edge precinct is centrally located to deliver an exclusive, effortless lifestyle. 

This premium pocket has been designed with your family in mind, surrounded by expansive parklands, nearby South Rock State School and walking distance to the future local park or cycle through to the proposed connection to Birnam Views. Is also conveniently located near the community’s future vibrant town centre. 

 

🌳 Take the Plunge for your dream home!

FULL TURN KEY INCLUSIONS;

o –   Fixed Price Site Works including soil types (S, M, H1 & H2), retaining & piering as required

o – Two Split System Air Conditioning system

o – Fly screens, security screens and blinds included

o – landscaped garden, fenced and turfed

o – Aggregate Driveway, clothesline, letterbox 

o – LED lighting throughout the entire home

o – Ceiling fans to all bedrooms, living areas and Alfresco

o – 12sqm under-roof outdoor alfresco overlooking backyard

o – Customise the home to suit your needs

o –  900mm Westinghouse Stainless Steel built in Oven, cooktop & ducted rangehood

o –  Stainless Steel Dishwasher

Plus much much more…

**Photos are indicative use as they were taken from a similar home by the builder, some variances and inclusions may differ to the actual home**

**Conditions Apply**

QBCC Number 1062071

4 3 2 522 m2

Details

Address Lot 122 Edge Drive, Yarrabilba
Price $966,490 Fixed Price * Full Turnkey
Property Type Residential
Property ID 2835
Category House And Land Package
Land Area 522 m2
Floor Area 188 m2

Tools

Share This Property